皮帶
3842999715 力士樂皮帶輸送段
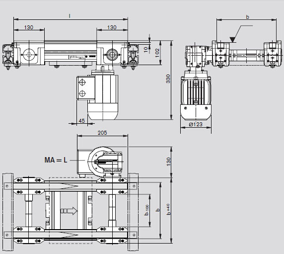
名稱:皮帶輸送段BS2/K
部件號:3842999715
供貨形式:已裝配
產品系列:輸送系統TS2 plus
021-57893800工作時間:周一至周五 9:00-18:00
- 產品介紹
- 技術參數
- 產品圖片
3842999715 力士樂皮帶輸送段用途:驅動 KE 2/O 型彎道,在進料與出料段縱向輸送工件托盤。
設計:
– 作為輸送段使用
– 在堆積操作中*大允許輸送段負載達60 kg(包括被驅動的彎道段)
– 輸送介質:帶表面編織層的齒形皮帶,也有抗靜電的齒形皮帶 (ZA = A)提供。
– 可選擇使用電纜/插頭 (AT = S) 或端子盒 (AT = K) 連接電機。

| bT1)[mm] | l2)[mm] | VN3)[m/min] | AT | MA | ZA |
| 160 | 320-6000 | 0;6;9;12;15;18 | S;K | R;L | N;A |
| 240 | 320-6000 | 0;6;9;12;15;18 | S;K | R;L | N;A |
| 320 | 320-6000 | 0;6;9;12;15;18 | S;K | R;L;M | N;A |
| 400 | 320-6000 | 0;6;9;12;15;18 | S;K | R;L;M | N;A |
| 480 | 320-6000 | 0;6;9;12;15;18 | S;K | R;L;M | N;A |
1)bT = 輸送方向的軌道寬度
2)l = 長度
3)VN = 額定輸送速度;
VN = 0: 不帶電機和減速器








